Rakennuksen elinkaari alkaa suunnittelusta –esteettisyydestä toimivuuteen
Rakennussuunnittelun vaiheet: visiosta rakennuspiirustuksiin
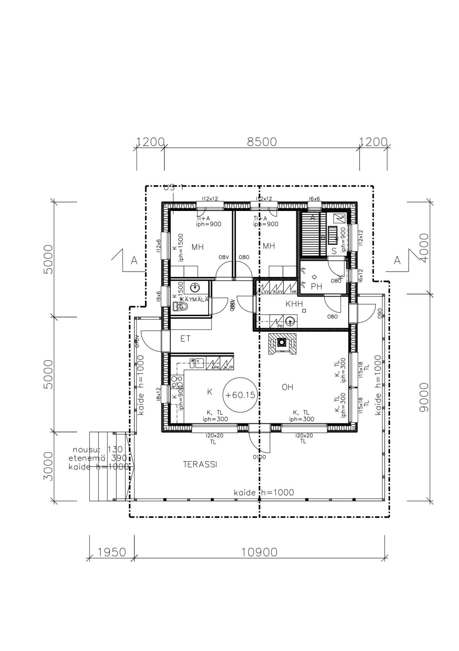
Rakennussuunnittelun prosessi alkaa vision määrittelystä ja päättyy täsmällisten rakennuspiirustusten laatimiseen. Tämä kattava suunnittelu varmistaa, että uudet rakennukset eivät ainoastaan näytä hyvältä vaan ovat myös turvallisia ja energiatehokkaita. Jokainen vaihe on kriittinen, aloittaen rakennuksen käyttötarkoituksen huolellisesta määrittelystä aina yksityiskohtaisiin rakennesuunnitelmiin, jotka ohjaavat rakentamisen toteutusta.
Rakennusprojektin onnistuminen riippuu useista tekijöistä, kuten sijainnista, käyttötarkoituksesta, suunnittelu- ja rakennuskustannuksista, sekä kestävän kehityksen periaatteista. Rakennussuunnittelijamme lähestyvät jokaista projektia yksilöllisesti, keskittyen asiakkaan toiveiden toteuttamiseen sekä käytännöllisten että esteettisten seikkojen osalta.
Kun tavoitteena on saada rakennus- tai toimenpidelupa, asiantunteva rakennussuunnittelu on avainasemassa. Tämä pätee niin uusien rakennusten pystytyksessä kuin olemassa olevien rakennusten julkisivumuutoksissa tai käyttötarkoituksen muutoksissa.
Lähestymistapamme suunnittelussa on käytännönläheinen ja asiakaslähtöinen. Ylpeytemme on ammattitaitomme, jolla vastaamme niin suuriin kuin pieniinkin suunnittelutarpeisiin, tarjoten laadukkaita ja toimivia suunnitelmia joka kerta.
